*** Helle 3-Zi-Terrassenwohnung mit TG-Einzelstell in guter Lage Haar ***
Besichtigungen möglich
Helle 3-Zi-Terrassenwohnung mit TG-Einzelstellplatz in guter Lage Haar
Ideale Wohnung für die kleine Familie - Selbstnutzer oder Kapitalanleger
Objektart
Adresse
Objektdaten
Informationen
Ausstattung
Details
Helle 3-Zi-Terrassenwohnung mit TG-Einzelstellplatz in guter Lage Haar
Ideale Wohnung für die kleine Familie - Selbstnutzer oder Kapitalanleger
Die hier angebotene 3-Zimmer-Wohnung befindet sich in der obersten 3. Etage eines gepflegten Mehrfamilienhauses in guter Lage der Stadt Haar.
Das Objekt besticht durch seine großzügige Terrasse, sowie einen separaten Balkon. Aufgrund des durchdachten Grundrisses, verfügt sie über ein Badezimmer mit separater Toilette, sowie einen praktischen Abstellraum.
Die Wohnung, sowie Tiefgarage kann bequem durch den Fahrstuhl erreicht werden.
Die Wohnung steht ab sofort zur Verfügung!
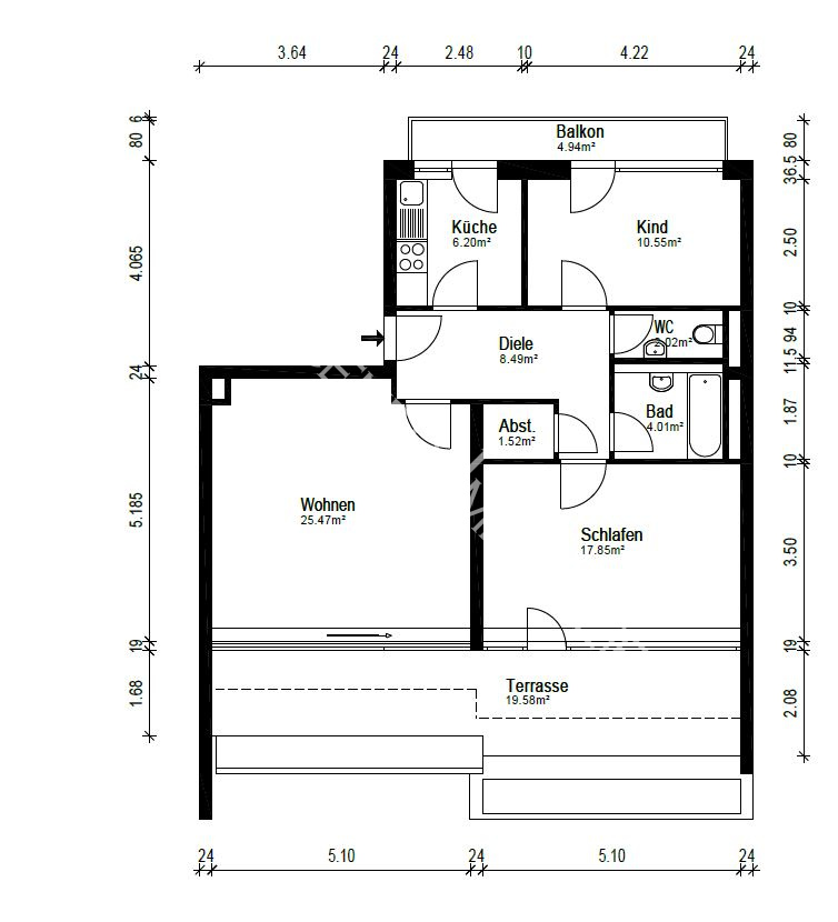
Aufteilung siehe auch beiliegenden Grundriss
+ Gepflegte Wohnanlage in Haar - Terrassenwohnung oberste 3. Etage
+ Personenaufzug vorhanden
+ Ca. 88 m² Wohnfläche, Grundfläche ca. 100,6 m²
+ Diele, ca. 8,69 m² und Bambusboden
+ Prakt. Abstellraum ca. 1,52 m² im Flur
+ Bad mit WMA ca. 3,69 m²
+ Separates WC ca. 2,02 m²
+ Wohnzimmer ca. 25,48 m² mit Zugang Terrasse
+ Schlafen mit Zugang Terrasse ca. 17,85 m²
+ West-Terrasse ca. 21,72 m² mit Markise
+ Zugang zur großzügigen West-Terrasse vom WZ + SZ
+ Neue Fenster WZ und Kind und Küche
+ Küche mit EBK ca. 6,20 m²
+ Kind/Arbeit ca. 10,55 m²
+ Balkon ca. 4,9 m² - Zugang von der Küche + Kind/Arbeit
+ Großer Keller ca. 10 m² mit Strom und Licht
+ Abschließbarer TG-Einzelstellplatz (direkter Zugang vom Haus zur TG)
Kaufobjekt im Alleinauftrag - Verfügbarkeit nach Absprache
Wohnung + EBK + Keller + TG-Einzelstellplatz = Gesamtkaufpreis 575.000 EUR
Senden Sie uns bitte eine Onlineanfrage mit Ihren vollständigen Kontaktdaten zu. Wir setzen uns dann schnellstmöglich mit Ihnen in Verbindung.
+ Wohnanlage in Haar
+ Heizung wurde 2023 erneuert
+ Terrassenwohnung oberste 3. Etage
+ Keine Dachschrägen
+ Personenaufzug vorhanden
+ Ca. 88 m² Wohnfläche, Grundfläche ca. 100,6 m²
+ Diele mit Bambusböden
+ Küche mit EBK vorhanden
+ Elektrische Jalousie im Wohnbereich
+ Großzügige Terrasse mit Fliesen
+ Praktischer Abstellraum
+ Großer Keller mit Strom und Licht
+ Gemeinschaftsräume vorhanden: Waschküche, Trockenraum, Fahrrad
+ Abschließbarer TG-Einzelstellplatz (direkter Zugang vom Haus aus)
+ uvm.
Die Stadt Haar liegt an der östlichen Stadtgrenze von München.
Mit über 25.000 Einwohnerinnen und Einwohnern verfügt die Stadt Haar über eine erstklassige Infrastruktur und Verkehrsanbindung. Direkt an der Großstadt, aber immer noch im Grünen.
Ob mit dem Auto über die B304 oder im 10-Minuten-Takt mit der S-Bahn-Linie 4 und 6 sind Sie in 20 Minuten im Stadtzentrum in der Fußgängerzone.
Sämtliche Geschäfte des täglichen Bedarfs sowie Ärzte und sonstige medizinische Einrichtungen sind in Haar zahlreich vorhanden. Für Kinder sind Kindergärten, Grundschulen, eine Mittelschule sowie ein Gymnasium vorhanden.
Zahlreiche Einkaufsmöglichkeiten (z.B. Aldi, Drogerie, Edeka, Lidl. REWE u.v.m.) befinden sich in unmittelbarer Umgebung. Die Bushaltestelle Buslinie 243 (Haar, Hans-Stießberger-Straße - Haar S-Bahn -Neukeferloh - Grasbrunn - Harthausen) befindet sich in in unmittelbarer Nähe.
Wir bieten Ihnen Sicherheit und kompletten Rundum-Service! Immobilienvermarktung ist Vertrauenssache, gerne beraten wir Sie bei Fragen rund um Ihre Immobilie. Wir freuen uns auf Ihren Anruf.
Alle Angaben sind freibleibend, unverbindlich, ohne Gewähr und basieren ausschließlich auf Informationen, die uns von unserem Auftraggeber mitgeteilt wurden. Wir übernehmen keine Gewähr für Vollständigkeit, Richtigkeit und Aktualität. Zwischenvermittlung und Irrtum bleibt vorbehalten. Es gelten unsere Allgemeinen Geschäftsbedingungen.
Käufer-Provision inkl. gültiger MwSt., verdient und fällig mit Beurkundung des notariellen Kaufvertrages. Der Immobilienmakler hat einen provisionspflichtigen Maklervertrag mit dem Verkäufer in mindestens gleicher Höhe abgeschlossen.
Wir sind für Sie auch erreichbar in unserem Ladengeschäft:
Truderinger Str. 296, 81825 München
Öffnungszeiten: Mo - Fr 09:00 bis 13:00 Uhr
(weitere Termine nach Vereinbarung)
Ansprechpartner
office@wegenerimmobilien.de
Inhaber (Zertifizierter Bausachverständiger für Wertermittlung von bebauten und unbebauten Grundstücken (VfB) e.V)
Energieausweis (Verbrauchsausweis)
152 kWh / (m²*a) Energieverbrauchskennwert
152 kWh / (m²*a) Energieverbrauchskennwert
152 kWh / (m²*a) Energieverbrauchskennwert
Weitere Informationen
| Wesentlicher Energieträger | Gas |
| Energieausweis Ausstelldatum | 2018-08-31 |
| Energieausweis gültig bis | 31.08.2028 |
| Energieausweis Jahrgang | ab dem 1.5.2014 |
| Energieausweis Werteklasse | E |
| Energieausweis Baujahr | 1973 |
| Energieausweis Gebäudeart | Wohngebäude |
| Heizung | Zentralheizung |
| Befeuerung | Gas |
Ich bin damit einverstanden, dass mir Karten von Google angezeigt werden. Es gelten die Datenschutzbedingungen von Google (https://policies.google.com/privacy).
Ich bin einverstanden
